Borang Pendaftaran Pekerja Perkeso

Bagi tujuan pendaftaran majikan dikehendaki mengisi borang pendaftaran majikan borang 1 serta borang pendaftaran pekerja borang 2 bersama dengan dokumen yang ditetapkan sila dapatkan senarai semak menerusi laman sesawang atau pejabat perkeso dan mengemukakannya ke pejabat perkeso berdekatan.
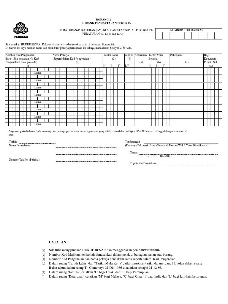
Borang pendaftaran pekerja perkeso. 03 4256 7798 sms. Menara perkeso 281 jalan ampang 50538 kuala lumpur. Borang 2 bm apporoved by ag. I c your complaint send to 15888.
Menara perkeso 281 jalan ampang 50538 kuala lumpur. I c aduan anda hantar ke 15888. Borang 2 borang pendaftaran pekerja peraturan peraturan am keselamatan sosial pekerja 1971 peraturan 10 12 dan 12a tarikh lahir. 6 1 majikan yang berhasrat membuat pendaftaran baru sip majikan atau pekerja seksyen 14 dan 16 akta sip 2017 atau pemberitahuan pendaftaran majikan atau pekerja seksyen 15 dan 17 akta sip 2017 sebelum februari 2018 adalah dikehendaki melakukannya di kaunter pejabat perkeso secara manual dengan menggunakan borang sip1 dan borang sip2.
Perkeso borang 2 borang pendaftaran pekerja the fly. Pendaftaran majikan pekerja dan bayaran caruman kini boleh melalui. 03 4256 7798 sms. Menara perkeso 281 jalan ampang 50538 kuala lumpur.
Menara perkeso 281 jalan ampang 50538 kuala lumpur. Cara untuk bayar socso perkeso assist portal sangat mudah duration. Kami sedia maklum sekiranya pihak kami didapati memberi maklumat palsu maka kami boleh didakwa di bawah akta sip 2017 dan kelulusan ini boleh dibatalkan serta merta oleh pihak perkeso. Pengesahan majikan wakil majikan saya mengesahkan bahawa tiada seorang pun pekerja perusahaan ini sebagaimana yang dinyatakan dalam seksyen 16 akta telah tertinggal daripada senarai di atas.
Unsubscribe from the fly. 3 pendaftaran pekerja asing 3 pendaftaran pekerja asing. 03 4256 7798 sms. Borang sip 2 borang pendaftaran pekerja peraturan peraturan sistem insurans pekerjaan pendaftaran dan caruman 2017 b.